Chetwynd Public Library Project
The consultation on the Chetwynd Public Library project is now concluded, and the project has been completed and archived as of August 1, 2025.
The new library, which replaces the original 1959 facility, was a collaborative effort led by the Peace River Regional District starting in 2016, in partnership with the District of Chetwynd and the Library Board. Construction is finished, and the new building, located at 4522 North Access Road, Chetwynd, officially opened on June 24, 2024, with a grand opening ceremony on June 3, 2025.
For any questions, please contact the Community Services Department at community.services@prrd.bc.ca or 250-784-3200.
The consultation on the Chetwynd Public Library project is now concluded, and the project has been completed and archived as of August 1, 2025.
The new library, which replaces the original 1959 facility, was a collaborative effort led by the Peace River Regional District starting in 2016, in partnership with the District of Chetwynd and the Library Board. Construction is finished, and the new building, located at 4522 North Access Road, Chetwynd, officially opened on June 24, 2024, with a grand opening ceremony on June 3, 2025.
For any questions, please contact the Community Services Department at community.services@prrd.bc.ca or 250-784-3200.
-
New Chetwynd Library set to open to public in June
Share New Chetwynd Library set to open to public in June on Facebook Share New Chetwynd Library set to open to public in June on Twitter Share New Chetwynd Library set to open to public in June on Linkedin Email New Chetwynd Library set to open to public in June linkThe Chetwynd Public Library Association will open the doors of its new facility on June 24, 2024, marking a significant milestone for the community. The new library will offer an improved space for residents to engage, learn and foster connections.
Construction on the project began on June 3, 2022, thanks to funding from the Chetwynd Public Library Association, businesses, local governments, granting agencies and local families. This support reflects the shared commitment to promoting education and literacy in Chetwynd and the surrounding area.
PRRD Director Dan Rose of Electoral E commends the new library as a major achievement for the area.
“The Chetwynd Library is a symbol of community collaboration and a reflection of the community’s commitment to development in the Peace River region,” said Director Rose. “With generous local support, the Library Board has created a welcoming new space for community gatherings and learning. Like many other facilities, this was made possible through the power of partnerships.”
The existing library is a revered community fixture in Chetwynd providing services and programs to locals since 1959. In 2016, at the request of the District of Chetwynd and the Chetwynd Library Board, the PRRD began exploring options for repair or replacement. This effort led to the formation of the current Library Advisory Committee and a study that recommended a new building. After an in-depth analysis and public engagement process that spanned three years, Faction Projects Inc. (formerly Field Lievers Architecture) and Celtic Construction began construction.
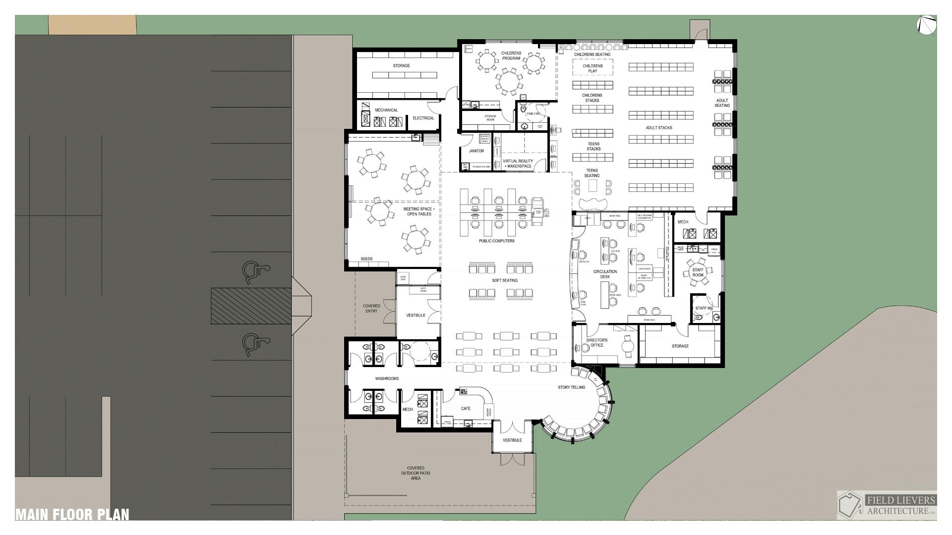
The final 8,600 square foot facility features much-needed storage and accessibility upgrades, with room to meet the community’s current and future needs. In addition to the services and spaces that the community has grown to love, the new library provides exciting new amenities such as a storytelling space, children’s program room, teen seating area, maker space and virtual reality room, multi-purpose room and outdoor patio with views of the skate park. Patrons of the new Chetwynd Public Library can also look forward to enjoying the café in a 20-person open seating and food preparation area.
The Chetwynd Public Library Association will open the doors of its new facility on June 24, 2024, marking a significant milestone for the community. The new library will offer an improved space for residents to engage, learn and foster connections.
Construction on the project began on June 3, 2022, thanks to funding from the Chetwynd Public Library Association, businesses, local governments, granting agencies and local families. This support reflects the shared commitment to promoting education and literacy in Chetwynd and the surrounding area.
PRRD Director Dan Rose of Electoral E commends the new library as a major achievement for the area.
“The Chetwynd Library is a symbol of community collaboration and a reflection of the community’s commitment to development in the Peace River region,” said Director Rose. “With generous local support, the Library Board has created a welcoming new space for community gatherings and learning. Like many other facilities, this was made possible through the power of partnerships.”
The existing library is a revered community fixture in Chetwynd providing services and programs to locals since 1959. In 2016, at the request of the District of Chetwynd and the Chetwynd Library Board, the PRRD began exploring options for repair or replacement. This effort led to the formation of the current Library Advisory Committee and a study that recommended a new building. After an in-depth analysis and public engagement process that spanned three years, Faction Projects Inc. (formerly Field Lievers Architecture) and Celtic Construction began construction.
The final 8,600 square foot facility features much-needed storage and accessibility upgrades, with room to meet the community’s current and future needs. In addition to the services and spaces that the community has grown to love, the new library provides exciting new amenities such as a storytelling space, children’s program room, teen seating area, maker space and virtual reality room, multi-purpose room and outdoor patio with views of the skate park. Patrons of the new Chetwynd Public Library can also look forward to enjoying the café in a 20-person open seating and food preparation area.
The consultation on the Chetwynd Public Library project is now concluded, and the project has been completed and archived as of August 1, 2025.
The new library, which replaces the original 1959 facility, was a collaborative effort led by the Peace River Regional District starting in 2016, in partnership with the District of Chetwynd and the Library Board. Construction is finished, and the new building, located at 4522 North Access Road, Chetwynd, officially opened on June 24, 2024, with a grand opening ceremony on June 3, 2025.
For any questions, please contact the Community Services Department at community.services@prrd.bc.ca or 250-784-3200.
-
Community Donations Received for the New Chetwynd Public Library
Share Community Donations Received for the New Chetwynd Public Library on Facebook Share Community Donations Received for the New Chetwynd Public Library on Twitter Share Community Donations Received for the New Chetwynd Public Library on Linkedin Email Community Donations Received for the New Chetwynd Public Library linkOn Friday, June 3, 2022 the Chetwynd Public Library project marked a milestone when shovels hit the site of the new library grounds for the first time. The event commemorated the life of Yvonne Elden, a tireless community leader in Chetwynd who was instrumental in establishing the first library as a member of the Little Prairie Ladies Club.
A number of community partners also announced their commitment to the project and community by making the following contributions:
- Family of Yvonne Elden $5,000
- Northeast BC Community Foundation Yvonne Elden Fund $5,215
- Canfor - Chetwynd Sawmill (lumber valued at $9,335)
- West Fraser - Chetwynd Forest Industries (lumber valued at $11,858)
- Coastal GasLink $50,000
- Surerus Murphy Joint Venture $50,000
- Northern Development Initiative Trust $300,000
- District of Chetwynd $1,000,000
- Peace River Regional District Area 'E' $2,930,092
- Chetwynd Public Library Association $840,000
The Peace River Regional District, District of Chetwynd, Chetwynd Library Board and Chetwynd Library Advisory Committee sincerely thanks all donors for their contributions and all of the community support the project has seen to date.
On Friday, June 3, 2022 the Chetwynd Public Library project marked a milestone when shovels hit the site of the new library grounds for the first time. The event commemorated the life of Yvonne Elden, a tireless community leader in Chetwynd who was instrumental in establishing the first library as a member of the Little Prairie Ladies Club.
A number of community partners also announced their commitment to the project and community by making the following contributions:
- Family of Yvonne Elden $5,000
- Northeast BC Community Foundation Yvonne Elden Fund $5,215
- Canfor - Chetwynd Sawmill (lumber valued at $9,335)
- West Fraser - Chetwynd Forest Industries (lumber valued at $11,858)
- Coastal GasLink $50,000
- Surerus Murphy Joint Venture $50,000
- Northern Development Initiative Trust $300,000
- District of Chetwynd $1,000,000
- Peace River Regional District Area 'E' $2,930,092
- Chetwynd Public Library Association $840,000
The Peace River Regional District, District of Chetwynd, Chetwynd Library Board and Chetwynd Library Advisory Committee sincerely thanks all donors for their contributions and all of the community support the project has seen to date.
The consultation on the Chetwynd Public Library project is now concluded, and the project has been completed and archived as of August 1, 2025.
The new library, which replaces the original 1959 facility, was a collaborative effort led by the Peace River Regional District starting in 2016, in partnership with the District of Chetwynd and the Library Board. Construction is finished, and the new building, located at 4522 North Access Road, Chetwynd, officially opened on June 24, 2024, with a grand opening ceremony on June 3, 2025.
For any questions, please contact the Community Services Department at community.services@prrd.bc.ca or 250-784-3200.
-
Project Background
Share Project Background on Facebook Share Project Background on Twitter Share Project Background on Linkedin Email Project Background linkCLOSED: This discussion has concluded.2016
At the request of the District of Chetwynd and the Chetwynd Library Board, the Peace River Regional District started work on examining the options to either upgrade the current library or build a new library in Chetwynd. Funds were budgeted by the Regional District to conduct a feasibility study which included forming an Advisory Committee and hiring a consultant specializing in library services to lead the project. The Advisory Committee consists of the Library Executive Director, Library Board members, and the PRRD Electoral E Director.This study recommended that a new library is needed to replace the existing facility and should be built on the Chetwynd Rec Centre property, which is central to other community features.
2017
After the final report for the first phase of the project was concluded, the decision was made to hire an architect to complete a concept design and cost estimate for the project.
2018
A design was completed by an architect working with the Advisory Committee. The design was to go public but was cancelled, as the committee felt the cost was too high. The decision was made to apply for a grant from the Provincial and Federal Government that could fund up to 90% of the capital costs for a new facility.2019
The grant application was submitted in January 2019 and results were to be made public in summer 2019.2020
The PRRD was notified that the grant application was unsuccessful.2021
A project team was hired to design and build a new facility, based on guidance from the Chetwynd Library Advisory Committee, Chetwynd Public Library Board, Library staff, Peace River Regional District, and District of Chetwynd.2022
Contract awarded to construction firm, groundbreaking ceremony takes place in June.2023
Construction continues with anticipated opening of the new building in September, 2023.2016
At the request of the District of Chetwynd and the Chetwynd Library Board, the Peace River Regional District started work on examining the options to either upgrade the current library or build a new library in Chetwynd. Funds were budgeted by the Regional District to conduct a feasibility study which included forming an Advisory Committee and hiring a consultant specializing in library services to lead the project. The Advisory Committee consists of the Library Executive Director, Library Board members, and the PRRD Electoral E Director.This study recommended that a new library is needed to replace the existing facility and should be built on the Chetwynd Rec Centre property, which is central to other community features.
2017
After the final report for the first phase of the project was concluded, the decision was made to hire an architect to complete a concept design and cost estimate for the project.
2018
A design was completed by an architect working with the Advisory Committee. The design was to go public but was cancelled, as the committee felt the cost was too high. The decision was made to apply for a grant from the Provincial and Federal Government that could fund up to 90% of the capital costs for a new facility.2019
The grant application was submitted in January 2019 and results were to be made public in summer 2019.2020
The PRRD was notified that the grant application was unsuccessful.2021
A project team was hired to design and build a new facility, based on guidance from the Chetwynd Library Advisory Committee, Chetwynd Public Library Board, Library staff, Peace River Regional District, and District of Chetwynd.2022
Contract awarded to construction firm, groundbreaking ceremony takes place in June.2023
Construction continues with anticipated opening of the new building in September, 2023.The consultation on the Chetwynd Public Library project is now concluded, and the project has been completed and archived as of August 1, 2025.
The new library, which replaces the original 1959 facility, was a collaborative effort led by the Peace River Regional District starting in 2016, in partnership with the District of Chetwynd and the Library Board. Construction is finished, and the new building, located at 4522 North Access Road, Chetwynd, officially opened on June 24, 2024, with a grand opening ceremony on June 3, 2025.
For any questions, please contact the Community Services Department at community.services@prrd.bc.ca or 250-784-3200.
-
Project Open House
Share Project Open House on Facebook Share Project Open House on Twitter Share Project Open House on Linkedin Email Project Open House linkCLOSED: This discussion has concluded.Thank you to everyone who joined the virtual open house on November 3rd. The meeting recording is now available to watch on the PRRD YouTube channel: https://youtu.be/qZ_346GADHE
Members of the project team and library advisory committee spoke about the design, features, and funding for the new facility, and answered some frequently asked questions received this far!
Thank you to everyone who joined the virtual open house on November 3rd. The meeting recording is now available to watch on the PRRD YouTube channel: https://youtu.be/qZ_346GADHE
Members of the project team and library advisory committee spoke about the design, features, and funding for the new facility, and answered some frequently asked questions received this far!
The consultation on the Chetwynd Public Library project is now concluded, and the project has been completed and archived as of August 1, 2025.
The new library, which replaces the original 1959 facility, was a collaborative effort led by the Peace River Regional District starting in 2016, in partnership with the District of Chetwynd and the Library Board. Construction is finished, and the new building, located at 4522 North Access Road, Chetwynd, officially opened on June 24, 2024, with a grand opening ceremony on June 3, 2025.
For any questions, please contact the Community Services Department at community.services@prrd.bc.ca or 250-784-3200.
-
Survey Results
Share Survey Results on Facebook Share Survey Results on Twitter Share Survey Results on Linkedin Email Survey Results linkCLOSED: This discussion has concluded.Thank you to everyone who filled out the survey for the Chetwynd Public Library Replacement Project! Your engagement and important feedback from the survey will help move forward on the project.
You can now find a summary of the responses by clicking here.
Thank you to everyone who filled out the survey for the Chetwynd Public Library Replacement Project! Your engagement and important feedback from the survey will help move forward on the project.
You can now find a summary of the responses by clicking here.
The consultation on the Chetwynd Public Library project is now concluded, and the project has been completed and archived as of August 1, 2025.
The new library, which replaces the original 1959 facility, was a collaborative effort led by the Peace River Regional District starting in 2016, in partnership with the District of Chetwynd and the Library Board. Construction is finished, and the new building, located at 4522 North Access Road, Chetwynd, officially opened on June 24, 2024, with a grand opening ceremony on June 3, 2025.
For any questions, please contact the Community Services Department at community.services@prrd.bc.ca or 250-784-3200.
Who's Listening
-
BC
Phone 250-784-3200 Email bryna.casey@prrd.bc.ca
Lifecycle
-
Feasibility Study
Chetwynd Public Library Project has finished this stageIn 2016, the PRRD started work on examining on the options to either upgrade the current library or build a new library in Chetwynd. Funds were budgeted by the Regional District to conduct a feasibility study which included forming an Advisory Committee and hiring a consultant specializing in library services to lead the project.
-
Public Engagement & Final Report
Chetwynd Public Library Project has finished this stageThe Project Advisory Committee, and Consultant worked together with staff to complete the following:
- Analyzed current and expected usage
- Examined library documents, statistics and the services offered
- Researched library trends (what do libraries offer now and what will they offer in the future)
- Analyzed population in and around Chetwynd
- Compared the current library to other libraries
- Interviewed library staff and the board, elected officials, local government representatives, library users and community stakeholders
- 17 meetings in total with 59 stakeholders
- Gained input from the public through two surveys
- 401 surveys returned for the initial consultation and 200 surveys returned after the final report presentation
-
Design Concepts & Public Engagement
Chetwynd Public Library Project has finished this stageIn 2021, a project team was hired to work with the Project Advisory committee to develop a design and associated cost estimates based on stakeholder direction. These design concepts are now being presented to the community for feedback on the design options.
-
Construction
Chetwynd Public Library Project has finished this stageConstruction beginning in June 2022 and to be completed by March-June 2024.
-
Construction Complete and Soft Opening
Chetwynd Public Library Project has finished this stageThe new library, located at 4522 North Access Road, Chetwynd, will open to the public on June 24, 2024.
-
Grand Opening Ceremony
Chetwynd Public Library Project is currently at this stageAn official grand opening and acknowledgement of all generous donors is scheduled for June 3, 2025.
Videos
-
Click here to play video
Construction timelapse of the new Chetwynd Public Library
Watch the new Chetwynd Public Library come to life in this timelapse video from June 2022 to March 2024!
-
Click here to play video Groundbreaking Ceremony Highlights: June 3, 2022
-
Click here to play video
Project Open House
Members of the project team and library advisory committee spoke about the design, features, and funding for the new facility, and answered some frequently asked questions received this far!
Grand Opening Ceremony - June 3, 2025
Groundbreaking Ceremony, June 3, 2022
Project Documents
-
2021 Project Engagement Survey Results (146 KB) (pdf)
-
Have you heard this about the Chetwynd Public Library Project? (523 KB) (pdf)
-
Chetwynd Library Design Information Boards (11.3 MB) (pdf)
-
Chetwynd Library Schematic Design Report (103 KB) (pdf)
-
Chetwynd Library 3D Images (2.03 MB) (pdf)
-
2017 Public Engagement Summary (1.46 MB) (pdf)
-
2017 Study Executive Summary (17.1 MB) (pdf)
-
2017 Study Final Report (35.6 MB) (pdf)

















